Navigation überspringen
  • Start
  • Profil
  • Büro
  • Aktuell
 
Navigation überspringen
  • Geschäftsfelder
  • Auftraggeber
  • Referenzprojekte
 
Profil Referenzprojekte Ansiedlungsmanagement für Gewerbeflächen in Berlin-Lichtenberg
Navigation überspringen
  • GAV "East Side Office" Am Postbahnhof in Berlin
  • Entwicklung des MFG 5-Areal Kiel-Holtenau
  • Holzmarkt in Berlin Friedrichshain-Kreuzberg
  • Wohnungsbaustrategien für "Berlins Mitte"
  • GAV Cuvryhöfe in Berlin Friedrichshain-Kreuzberg
  • Wohnbaupotenziale im Planwerk Innere Stadt
  • Wettbewerb am Petriplatz in Berlin-Mitte
  • Wohnbauflächenaktivierung in Berlin
  • Workshopverfahren Ernst-Reuter-Platz
  • Wettbewerb am Schinkelplatz in Berlin-Mitte
  • Machbarkeitsstudie für eine Sportboot-Schleppanlage
  • Ansiedlungsmanagement für Gewerbeflächen in Berlin-Lichtenberg
  • Standort- und Marktanalyse für Mietwohnungsneubau in Berlin-Adlershof
  • GAV zur Fassadengestaltung am Hauptbahnhof Berlin
  • IBA Hamburg - Wohn-, Dienstleistungs- und Hallenkomplex
  • Pilotverfahren Baugruppen in Berlin – 2. Tranche
  • Bieterwettbewerb Potsdamer Mitte
  • Umnutzung des Krematoriums in Berlin-Wedding
  • BBI Airport City - Vergabeverfahren
  • IBA Hamburg - Wohnungsbauprojekte
  • Studie - Nachfragepotenzial von Baugruppen in Berlin
  • GAV zum Masterplan für Berlin-Niederschöneweide
  • Pilotverfahren Baugruppen in Berlin - 1. Tranche
  • GAV - Hochhaus Mercedesstraße in Düsseldorf
  • Portfolioanalyse - Liegenschaftsfonds Berlin
  • Hamburg HafenCity - Überseequartier
 
Quelle: Ansiedlungsmanagement Gewerbeflächen Lichtenberg

Ansiedlungsmanagement für Gewerbeflächen im Bezirk Lichtenberg von Berlin (370)

Das Bezirksamt Lichtenberg hat von der Senatsverwaltung für Wirtschaft, Technologie und Frauen Fördermittel aus der "Gemeinschaftsaufgabe Verbesserung der regionalen Wirtschaftsstruktur" (GRW) für die Umsetzung des Projektes "Ansiedlungsmanagement durch einen begleitenden Projektmanager" erhalten. Mit der Umsetzung dieses Projekts wurde die Arbeitsgemeinschaft aus complan Kommunalberatung GmbH, Potsdam und ProStadt GmbH, Berlin beauftragt, die am 1. März 2011 die Arbeit aufgenommen hat.

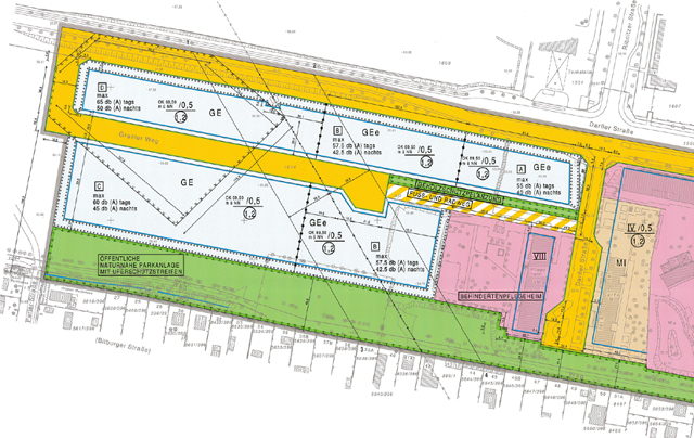
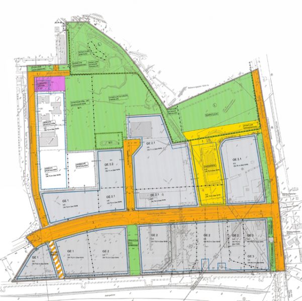
Zentrale Aufgabe ist die Unternehmensansiedlung auf den landeseigenen Gewerbegebieten "Darßer Straße / Graaler Weg" (3 ha) und "Pablo-Picasso-Straße" (15 ha) im Bezirk Lichtenberg vorzubereiten und zu unterstützen. Die freien Flächen in Innenstadtrandlage bieten Raum für Vorhaben von Unternehmen des produzierenden bzw. verarbeitenden Gewerbes sowie produktionsnaher und unternehmensorientierter Dienstleistungen.

In einer Arbeitsgemeinschaft mit der complan Kommunalberatung GmbH erbringt ProStadt folgende Leistungen:

  • Abschluss einer Kooperationsvereinbarung mit allen an der Vermarktung beteiligten öffentlichen Partnern
  • Analyse und Optimierung der Grundlagen für die Vermarktung
  • Analyse und Bewertung von Lage, Verkehrsanbindung, Erschließung, Infrastrukturversorgung, Umfeldqualität, Nutzungsstruktur, Wettbewerbssituation und Umfeld der Gewerbeflächen
  • Erstellung bzw. Optimierung der Marketinginstrumente zur gezielten Unternehmensansprache
  • Mitwirkung bei der Einzelfallbetreuung ansiedlungsinteressierter Unternehmen bis Kaufvertragsabschluss

Bearbeitungszeitraum:

  • März 2011 - Februar 2012

Auftraggeber:

  • Land Berlin vertreten durch das Bezirksamt Lichtenberg von Berlin, Abt. Wirtschaft und Immobilien
Auszüge aus der Montage der Bebauungspläne XXII-1a und XXII-38 zum Gewerbegebiet Pablo-Picasso-Straße, Quelle: Bezirksamt Lichtenberg von Berlin, Montage: ProStadt GmbH
Auszug aus dem Bebauungsplan XXII-2a zum Gewerbegebiet Darsser Straße, Quelle: Bezirksamt Lichtenberg von Berlin
I Projekthomepage

ProStadt GmbH

Stralauer Platz 34

D-10243 Berlin

Fon: +49 (0) 30 440 408 - 0

E-Mail: info@prostadt.de

Navigation überspringen
  • Sitemap
  • Kontakt
  • Impressum